新房

筛选
当前位置:天津房地产网  > 楼市聚焦 > 掌柜看盘
分享到
微信扫码分享
房掌柜小程序端

房掌柜小程序端

点赞(0)
收藏

滨海新区中新生态城生态宜居楼盘 世茂新街坊户型赏析

来源:房掌柜  整理 天津房掌柜  2015-12-28 01:43:41
[摘要]世茂•新街坊是由天津世茂•生态城项目打造的五期升级之作,包括100㎡三居和82㎡两居的高层产品,以及112-126㎡的洋房产品。今天小编就带大家看看项目的户型好不好。

世茂•新街坊是由天津世茂•生态城项目打造的五期升级之作,包括100㎡三居和82㎡两居的高层产品,以及112-126㎡的洋房产品。今天小编就带大家看看项目的户型好不好。

1 位于生态城 配套丰富

550x412.jpg

项目位于中新生态城门户彩虹桥畔,紧临约43万平米永定洲湿地公园和永定新河,具有独一无二的湿地系统价值和滨水景观优势。

项目周边汇集国内外独一无二的优质教育资源,毗邻约10000平米的第一社区中心和约7800平米的三星级国建绿色建筑——生态城健身馆,为居者打造15分钟生活服务圈,旗下所拥有的自持物业及酒店。

2 82平方米的B户型

500x375.jpg

图上为项目82平方米的B户型,为两室两厅一卫。该户型动静分区不是十分合理,厨房为动区却位于两个卧室(静区)中间,功能区受到干扰。两个卧室均为南向采光,但次卧的窗户较小,采光面并不是很大。卫生间干湿分离,但为暗卫,不利于通风。

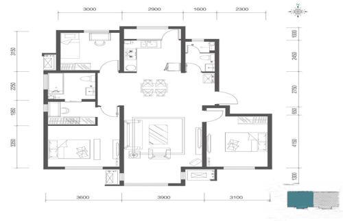
3 122平方米的C户型

500x375 (1).jpg

图上为项目122平方米的C户型,为三室两厅两卫户型。比较适合改善购入,主卧配备独立的卫生间,方便主人使用。客卫距离两个次卧室较远,动线距离较长。餐厨相连,方便用餐。

总结:滨海新区受国家政策的支持,房产的发展潜力看好。新房的增值空间较大,有意向的购房者可以考虑。

分享到:
责任编辑:康梦洁

转载或内容合作请点击转载说明,违规转载法律必究。
楼市爆料寻求报道,请点击这里
文章内容仅供参考,不构成投资建议,也不代表房掌柜赞同其观点。

新闻排行

新闻推荐

  1. 1家装成新居住行业入口 被窝升级发布“十心实意”安心承诺
  2. 2监管盯上金科股权变动深水区?
  3. 3红贯天津的塘沽一中强势进驻 塘沽湾区域利好重磅升级
  4. 4“五一”北京学区房迎最后疯狂?
  5. 5当代置业前4月合约销售额约71亿元 均价达10320元/平米
  6. 693年包租婆,“拥有”400栋房子,这个后浪不简单
  7. 7小长假北京二手房回暖 带看量大增、网签量恢复去年水平
  8. 8成都市民“五一”假期忙看房
  9. 9世茂繁忙四月天 销售同比增四成、物业提上市与二度配股
  10. 10香港发展局指土地共享先导计划明起接受申请 为期三年

楼盘推荐

视频推荐