新房

筛选
当前位置:天津房地产网  > 楼市聚焦 > 掌柜看盘
分享到
微信扫码分享
房掌柜小程序端

房掌柜小程序端

点赞(0)
收藏

北辰瑞景居住区天物未来城:地铁房上盖 性价比更高

来源:房掌柜  整理 天津房掌柜  2015-09-25 09:34:44
[摘要]随着限号政策的实施,可以明显感觉出现在只拥有私家车还是不能满足我们的出行需要,私家车+地铁房才更加可靠,对于动辄均价2、3万的地铁房,小编今天为大家推荐的准地铁房——天物未来城,性价比更高。

4 品户型:主推两室和三室

天物未来城户型面积区间为60-140平米,以90平米左右两室和130平米的三室为主力户型,下面就让小编为你详解下吧。

A3户型 96㎡两室

500x375n (4).jpg

A3户型 96㎡两室

A3户型约96㎡,南北通透,户型十分方正,动静分区明显,客厅、餐厅和厨房组成动区;两个卧室和卫生间组成静区。合理的布局是的每个空间面积都得到充分利用,没有浪费面积。

此户型双卧室设计均有窗,让您在家中就能享受最大化的阳光和风景,享受健康生活。

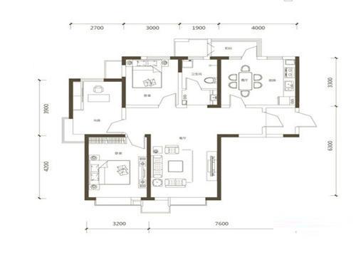
D户型 115㎡三室

500x375n (5).jpg

D户型 115㎡三室

D户型约115㎡,三室两厅一卫。主卧和次卧分居书房两侧,卫生间和厨房靠近玄关一侧。整体户型南北通透,动静区隔,客厅开间非常开阔。

客厅与主卧采用飘窗设计,引景入室,业主在家即可享受窗外的美景以及鸟语花香。卧室分居客餐两侧的好处就是,不至于让客人进门一眼望到卧室私密的东西,保证了主人的隐私不被侵犯。

小编总结:

地铁4号线预计2017年通车,这个时间点看似遥远,却恰好促成了天物未来城合适的价格,对于这样的准地铁房,遇到就不要错过啦,特别是准备婚房的刚需群体,因为天物未来城的位置和周边配套都很适合居住,3年后落成的地铁更能够锦上添花。

分享到:
责任编辑:康梦洁

转载或内容合作请点击转载说明,违规转载法律必究。
楼市爆料寻求报道,请点击这里
文章内容仅供参考,不构成投资建议,也不代表房掌柜赞同其观点。

新闻排行

新闻推荐

  1. 1家装成新居住行业入口 被窝升级发布“十心实意”安心承诺
  2. 2监管盯上金科股权变动深水区?
  3. 3红贯天津的塘沽一中强势进驻 塘沽湾区域利好重磅升级
  4. 4“五一”北京学区房迎最后疯狂?
  5. 5当代置业前4月合约销售额约71亿元 均价达10320元/平米
  6. 693年包租婆,“拥有”400栋房子,这个后浪不简单
  7. 7小长假北京二手房回暖 带看量大增、网签量恢复去年水平
  8. 8成都市民“五一”假期忙看房
  9. 9世茂繁忙四月天 销售同比增四成、物业提上市与二度配股
  10. 10香港发展局指土地共享先导计划明起接受申请 为期三年

楼盘推荐

视频推荐