新房

筛选
当前位置:天津房地产网  > 楼市聚焦 > 掌柜看盘
分享到
微信扫码分享
房掌柜小程序端

房掌柜小程序端

点赞(0)
收藏

滨海新区旅游区内宜居社区 融创融公馆项目详细解读

来源:房掌柜  整理 天津房掌柜  2015-09-17 11:07:38
[摘要]有一个项目位于受国家政策支持的经济区内,同时还是有深厚文化底蕴的旅游区,未来的发展潜力有目共睹,这就是融创融公馆。

有一个项目位于受国家政策支持的经济区内,同时还是有深厚文化底蕴的旅游区,未来的发展潜力有目共睹,这就是融创融公馆。

1 位于北塘经济区 通达各地

融创•融公馆项目位于北塘经济区中心区的中心,为曾经的北塘。文化底蕴深厚、是有600年历史的富庶之地。如今北塘经济区为滨海新区“十大战役”之一。

550x412.jpg

融创融公馆位置图

轨道交通Z2线北塘站距项目步行仅需10分钟可达,日后从融公馆至天津滨海国际机场仅需30分钟,再行 30分钟即达天津东站。此外,Z4线联接于家堡、北塘、中新生态城,京津二线高速路与北京60分钟通达,塘汉快速与天津30分钟通达,滨海新区中心城区10分钟通达。

2 休闲配套为主 教育医疗全面

QQ截图20150917110255.jpg

北塘属于旅游区,周边环境优美,环绕有北塘水库、森林公园及高尔夫球场等。周边以高端商、休闲娱乐务设施为主,生活基础配套少,居住不是很方便。

在配套方便值得一提的还有其教育和医疗配套。项目打造全系教育,引入北京蓝天幼儿园、昆明路小学、新华中学、实验中学等重点学府,让业主的孩子在家门口就能享受到优质的教育资源。此外,项目还打造了医疗体系,占地1.7万平方米的综合性医疗机构马光医院也即将落成,届时业主能够方便就医问诊。

3 独栋、联排、洋房三种产品

项目总共由47#、48#、49#地块组成,自北向南依次为洋房、合院式独栋别墅、联排别墅。

独栋别墅面积205~214平米,分为南合院和北合院,采用L型布局,每个房间都可以看见自家院落,营造独门独院的私家生活。联排别墅面积约180平米,打破传统联排别墅的狭小面宽,引用美式宽景设计理念,全地上三层,更增加了亲近自然的空间。洋房面积128 ~142平米,平层、跃层均有。位于别墅区的洋房,共享资源,居住更舒适。

4 户型面积大 设计合理

项目独栋20栋,地上2层,地下1层;联排20栋 ,地上3层;洋房66栋,6、7层到顶,洋房大户型为主。众所周知,别墅区的洋房在居住环境上会优于那些纯洋房或者洋房、高层均有的社区,那这些洋房的户型是不是也同样舒适呢,今天小编就带大家来看一看。

500x375 (1).jpg

图上为洋房的标准层户型,面积约为137平方米,为四室两厅两卫设计。前厅后卧结构,动区(客厅、餐厅、厨房)靠近入户处,静区(卧室、主卫)远离入户处,保证动静分区,互不干扰。客厅和餐厅处正对超大观景阳台,用餐和休闲之余都能享受观景的乐趣。主卧配备独立的卫生间和衣帽间,且距离入户处最远,充分保障私密、尊享主人的舒适。卫生间、厨房均为全明,便于通风,保证室内空气的清新。目前项目洋房均价12000元/平方米,该户型总价约为164万左右。

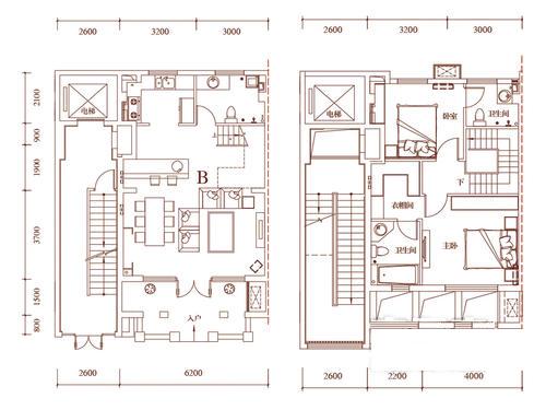
500x375.jpg

图上为跃层户型,面积约为128平方米。一层以动区为主,包括厨房、餐厅、客厅、客卫。在厨房和餐厅之间还有吧台的设计,时尚、现代。楼上为两个卧室,均配备独立卫生间,主卧带衣帽间,远离动区保证私密性和主人的安静不被打扰。不足的是主卧所配备的卫生间非全明,在通风换气上回稍差一些。

小编点评:项目位于旅游区内,户型较大且均价较高,不是十分适合刚需购入。但是因其所处的区域受政策支持和周边配套多以休闲为主,还是比较适合改善和投资购入。

分享到:
责任编辑:康梦洁

转载或内容合作请点击转载说明,违规转载法律必究。
楼市爆料寻求报道,请点击这里
文章内容仅供参考,不构成投资建议,也不代表房掌柜赞同其观点。

新闻排行

新闻推荐

  1. 1家装成新居住行业入口 被窝升级发布“十心实意”安心承诺
  2. 2监管盯上金科股权变动深水区?
  3. 3红贯天津的塘沽一中强势进驻 塘沽湾区域利好重磅升级
  4. 4“五一”北京学区房迎最后疯狂?
  5. 5当代置业前4月合约销售额约71亿元 均价达10320元/平米
  6. 693年包租婆,“拥有”400栋房子,这个后浪不简单
  7. 7小长假北京二手房回暖 带看量大增、网签量恢复去年水平
  8. 8成都市民“五一”假期忙看房
  9. 9世茂繁忙四月天 销售同比增四成、物业提上市与二度配股
  10. 10香港发展局指土地共享先导计划明起接受申请 为期三年

楼盘推荐

视频推荐